Complesso in vendita

Romano Canavese, Via Ponte Chiusella
€ 160.000
10 locali 10 locali
554 Mq 554 Mq
4 bagni 4 bagni

Complesso in vendita

Romano Canavese, Via Ponte Chiusella

Descrizione annuncio

ROMANO CANAVESE - COSA SAPERE DELL'IMMOBILE

PER INFORMAZIONI ED APPUNTAMENTI CHIAMA 0125.223378 OPPURE WHATSAPP 331.8088138

Nel cuore di Romano Canavese, proponiamo un ampio immobile su più livelli, ideale per chi cerca spazio e funzionalità. Con una superficie di 226 mq, questa proprietà offre ambienti versatili e ben distribuiti.

DESCRIZIONE E PARTICOLARITA'

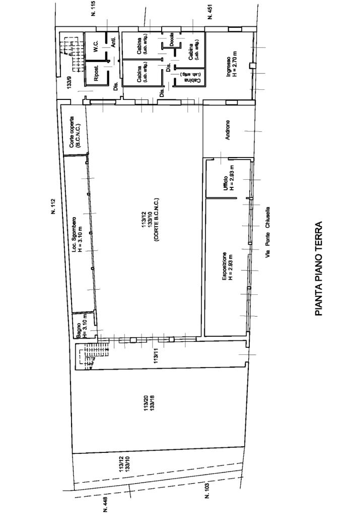
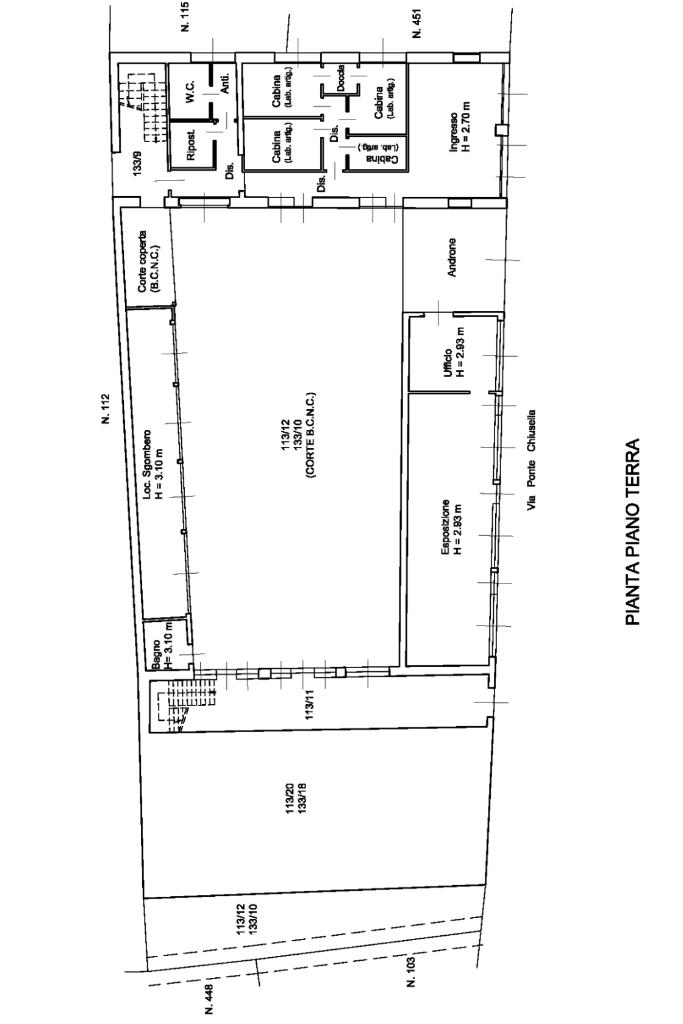
Il complesso si compone al piano terreno da un'area espositiva e da un negozio con magazzino al primo piano, e da due appartamenti rispettivamente al primo e al secondo piano. La proprietà include un cortile interno privato, una caratteristica rara che assicura comodità e sicurezza per i veicoli.

UBICAZIONE E CONTESTO

Questa soluzione rappresenta un'opportunità interessante per chi desidera un'attività commerciale e un'abitazione nello stesso stabile o per investimento in una zona tranquilla e facilmente raggiungibile, senza rinunciare ai servizi e alle comodità moderne.

Mostra tutto

Nelle vicinanze

Trasporto pubblico Trasporto pubblico
Strambino
Strambino
2,6 Km
Cascine Romano
Cascine Romano
20 m
Romano (Via San Rocco)
Romano (Via San Rocco)
550 m
Ricariche auto elettriche Ricariche auto elettriche
Scarmagno Via Romano | EnelX Fast
2,7 Km
Scuole Scuole
Scuole
80 m
Scuola Primaria Statale "M. Oscar A. Romero"
1,3 Km
Scuola Primaria Statale Adriano Olivetti
2,8 Km
Farmacia Farmacia
Farmacia San Solutore
1,8 Km
Farmacia Fabbi
2,2 Km
Farmacia San Giuseppe
3,0 Km
Supermercati Supermercati
Strambino 2
2,4 Km
Negozi Negozi
Compro Qui
60 m
Alimentari
1,1 Km
Negozi
1,7 Km
Panetteria Alimentari
2,8 Km
Bar Bar
Circolo Arci La Fagiuolesca
2,2 Km
Ristoranti Ristoranti
Osteria La Calla Nera
640 m
La Barbatella
1,3 Km
Pizzeria Hong Kong
1,7 Km
College Bar Griglieria Pizzeria
1,7 Km
Ristorante Bar Marocco
2,1 Km
Mostra tutto

Caratteristiche

Rif.:
61191713
Piano:
Su più livelli di 3
Totale piani:
3
Posti auto:
5
Balconi:
3
Condizionamento:
Autonomo
Mostra tutto
Prezzo Prezzo
€ 160.000
Rata mutuo Rata mutuo
€ 760 / mese
Spese annue Spese annue
€ 0
Proponi il tuo prezzoProponi il tuo prezzo

Classe Energetica

G
G
G
G
G
G
G
G
G
EP globale non rinnovabile:
0.00 kW h/m² anno
EP globale rinnovabile:
0.00 kW h/m² anno
EP invernale del fabbricato:
EP estiva del fabbricato:
Anno di costruzione:
1960
Riscaldamento:
Autonomo
Tipo impianto:
A radiatori
Tipo alimentazione:
Metano

Ti interessa visionare l'immobile?

Fissa un appuntamento  Fissa un appuntamento

Richiedi informazioni

Clicca su Leggi per aprire l'informativa
* Questi campi sono obbligatori

Calcola il tuo mutuo

Semplice e senza impegno
Anticipo

( % )
Mutuo

( % )

pochi semplici passi

inserisci i tuoi dati
Questionario completato
Grazie per aver richiesto un appuntamento senza impegno con un nostro Consulente del Credito e Assicurativo.

Hai inserito correttamente tutti i dati necessari e a breve riceverai una e-mail con un link da convalidare per inviare i tuoi dati.
Affiliato
Industriale Ivrea Uno Srl
Corso Massimo d'Azeglio, 10 10015 Ivrea (TO)

Il nostro staff


  • Nicolò Noro
    Affiliato

  • Mattia Blasotta
    Affiliato
Corso Massimo d'Azeglio, 10 10015 Ivrea (TO)
Zona: Ivrea
Mostra su mappa
Affiliato
Industriale Ivrea Uno Srl
Corso Massimo d'Azeglio, 10 10015 Ivrea (TO)

2026 Tecnocasa Franchising S.p.A. - P. IVA 08365160152 - Via Monte Bianco 60/A 20089 Rozzano (MI). Ogni agenzia ha un proprio titolare ed è autonoma. Privacy policy | Policy utilizzo | Cookie policy