Capannone in affitto

San Giorgio Canavese, Frazione Cortereggio
€ 2.750 / mese
1 locale 1 locale
1550 Mq 1550 Mq
3 bagni 3 bagni

Capannone in affitto

San Giorgio Canavese, Frazione Cortereggio

Descrizione annuncio

SAN GIORGIO - COSA SAPERE DELL'IMMOBILE

PER INFORMAZIONI ED APPUNTAMENTI CHIAMA 0125.223378 OPPURE WHATSAPP 331.8088138

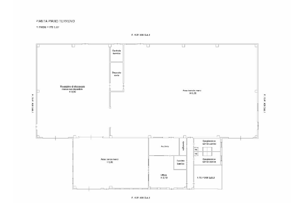
Nel comune di San Giorgio Canavese, proponiamo in locazione un ampio capannone di 1550 mq, situato al piano terra.

DESCRIZIONE E PARTICOLARITA'

L'immobile, costruito nel 2005, offre un ambiente spazioso e versatile, ideale per diverse attività commerciali o industriali.

Sono presenti tre bagni e zone spogliatoi, che garantiscono funzionalità e comodità per il personale e i visitatori e inoltre una zona adibita ad uffici.

All'esterno, una vasta area circonda il capannone, comoda per manovra da parte dei bilici/mezzi.

UBICAZIONE E CONTESTO

La posizione strategica nel comune di San Giorgio Canavese assicura un facile accesso alle principali vie di comunicazione, rendendo questo capannone una soluzione pratica e ben collegata per la vostra attività.

Mostra tutto

Nelle vicinanze

Trasporto pubblico Trasporto pubblico
San Giusto (Mottura)
San Giusto (Mottura)
2,2 Km
San Giusto (v. XXV Luglio/v. Nigra)
San Giusto (v. XXV Luglio/v. Nigra)
2,4 Km
Scuole Scuole
Scuola Elementare Marconi
2,4 Km
Scuola Elementare Gianni Rodari
2,9 Km
Farmacia Farmacia
Farmacia
2,6 Km
Farmacia Antonini
2,9 Km
Bar Bar
Geco's Bar
2,6 Km
Ristoranti Ristoranti
La Lucina
2,7 Km
Mostra tutto

Caratteristiche

Rif.:
61134022
Piano:
Terra
Condizionamento:
Predisposizione impianto
Ascensore:
No
Riscaldamento:
Autonomo
Giardino:
Privato
Mostra tutto
Prezzo Prezzo
€ 2.750 / mese

Classe Energetica

G
G
G
G
G
G
G
G
G
EP globale non rinnovabile:
504.44 kW h/m² anno
EP globale rinnovabile:
39.47 kW h/m² anno
EP invernale del fabbricato:
EP estiva del fabbricato:
Anno di costruzione:
2005
Riscaldamento:
Autonomo
Tipo impianto:
A pavimento
Tipo alimentazione:
Metano

Ti interessa visionare l'immobile?

Fissa un appuntamento  Fissa un appuntamento

Richiedi informazioni

Clicca su Leggi per aprire l'informativa
* Questi campi sono obbligatori
Affiliato
Industriale Ivrea Uno Srl
Corso Massimo d'Azeglio, 10 10015 Ivrea (TO)

Il nostro staff


  • Nicolò Noro
    Affiliato

  • Mattia Blasotta
    Affiliato
Corso Massimo d'Azeglio, 10 10015 Ivrea (TO)
Zona: Ivrea
Mostra su mappa
Affiliato
Industriale Ivrea Uno Srl
Corso Massimo d'Azeglio, 10 10015 Ivrea (TO)

2026 Tecnocasa Franchising S.p.A. - P. IVA 08365160152 - Via Monte Bianco 60/A 20089 Rozzano (MI). Ogni agenzia ha un proprio titolare ed è autonoma. Privacy policy | Policy utilizzo | Cookie policy