Negozio in affitto

Ivrea, Corso Vercelli - Fiorana
€ 590 / mese
Prezzo aggiornato
2 locali 2 locali
60 Mq 60 Mq
1 bagno 1 bagno

Negozio in affitto

Ivrea, Corso Vercelli - Fiorana

Descrizione annuncio

IVREA - COSA SAPERE DELL'IMMOBILE

PER INFORMAZIONI ED APPUNTAMENTI CHIAMA 0125.223378 OPPURE WHATSAPP 331.8088138

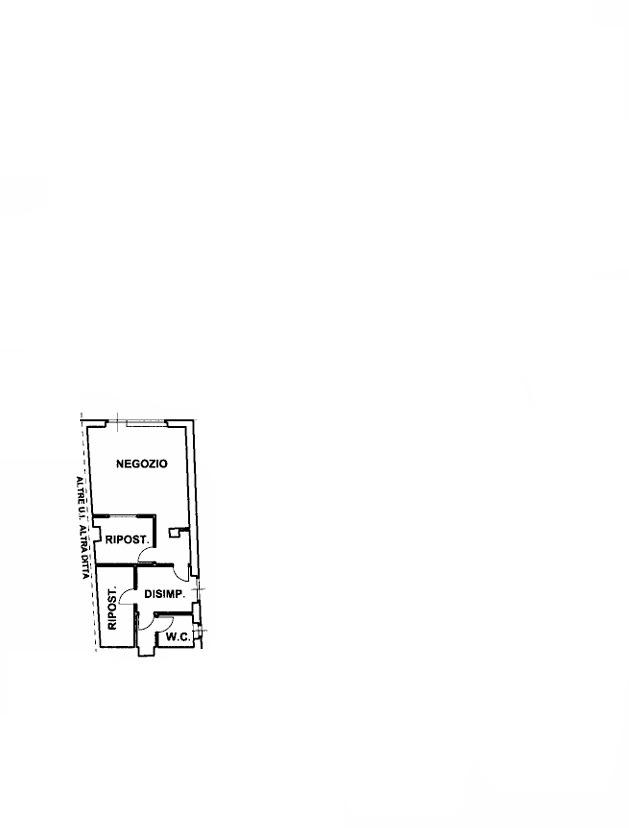
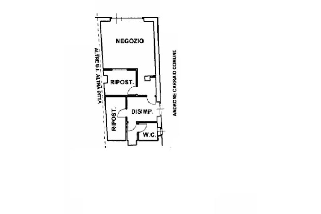
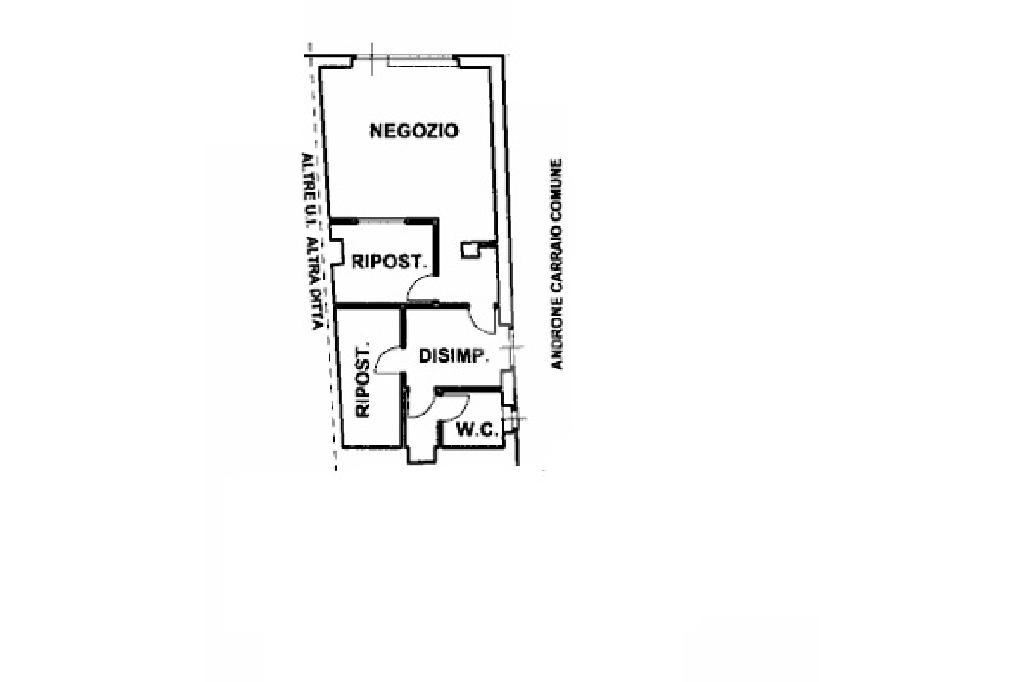
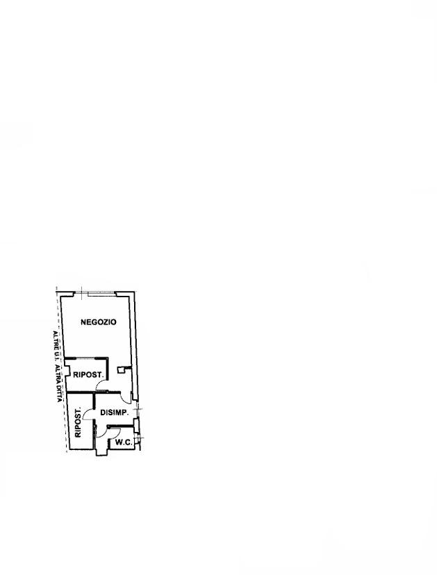
Nel cuore della località di Fiorana, nel comune di Ivrea, si propone in locazione un negozio di 60 mq situato al piano terra. L'immobile, offre uno spazio versatile adatto a diverse attività commerciali.

DESCRIZIONE E PARTICOLARITA'

La posizione strategica garantisce una buona visibilità e un facile accesso per i clienti. Gli interni, caratterizzati da un layout funzionale, permettono di organizzare l'ambiente secondo le proprie esigenze. La presenza di ampie vetrine consente un'ottima illuminazione naturale, creando un'atmosfera accogliente e invitante.

UBICAZIONE E CONTESTO

La zona è ben servita dai mezzi pubblici e dispone di parcheggi nelle vicinanze, facilitando l'afflusso della clientela. Questo negozio rappresenta un'opportunità interessante per chi desidera avviare o espandere la propria attività in un contesto dinamico e in crescita.

Mostra tutto

Nelle vicinanze

Trasporto pubblico Trasporto pubblico
Ivrea
Ivrea
1,0 Km
Ivrea (C.so Vercelli/S.Lorenzo APT)
Ivrea (C.so Vercelli/S.Lorenzo APT)
20 m
Ivrea (v. Cascinette/S.Lorenzo APT)
Ivrea (v. Cascinette/S.Lorenzo APT)
30 m
Ricariche auto elettriche Ricariche auto elettriche
Duferco Re Umberto
360 m
Conad Ivrea Corso Vercelli | EnelX
1,7 Km
Scuole Scuole
Scuola Primaria Statale Massimo d'Azeglio
220 m
Scuola Secondaria di Primo grado Leonardo Da Vinci (Succursale)
340 m
Scuola Primaria Statale Fiorana
510 m
Liceo Classico Statale Carlo Botta
680 m
Istituto Tecnico Commerciale e per Geometri Giovanni Cena
750 m
Farmacia Farmacia
Farmacia Rocchietta
190 m
Farmacia Stragiotti
410 m
Farmacia Fasano
730 m
farmacia Dora s.n.c.
1,1 Km
Farmacia Linda
1,1 Km
Ospedali Ospedali
Ospedale Civile Ivrea
960 m
Clinica Eporediese
1,5 Km
Supermercati Supermercati
Carrefour Express
110 m
Lidl
700 m
Bennet
1,0 Km
Ekom
1,4 Km
Conad
1,7 Km
Negozi Negozi
Panetteria F.lli Zoppo
20 m
Rosso Fragola
70 m
Freestyle
80 m
Fifth Avenue
90 m
Personlity Boutique
100 m
Bar Bar
Belushi
410 m
Bar Modina
1,6 Km
Bar Smeraldo
1,6 Km
Enoteca Bar AStor
2,0 Km
Ristoranti Ristoranti
La Bussola
110 m
Ristorante Cinese La Muraglia
340 m
Pizzeria Eporediese
400 m
Pizzeria da Romano
420 m
Trattoria dei Tigli
440 m
Mostra tutto

Caratteristiche

Rif.:
61134298
Piano:
Terra di 2
Totale piani:
2
Condizionamento:
Assente
Ascensore:
No
Riscaldamento:
Autonomo
Mostra tutto
Prezzo Prezzo
€ 590 / mese

Altre caratteristiche

Classe Energetica

Questo immobile è esente da classe energetica
Anno di costruzione:
1950
Riscaldamento:
Autonomo
Tipo impianto:
A radiatori
Tipo alimentazione:
Metano

Prezzo ridotto di €1 (10%%)

Ti interessa visionare l'immobile?

Fissa un appuntamento  Fissa un appuntamento

Richiedi informazioni

Clicca su Leggi per aprire l'informativa
* Questi campi sono obbligatori
Affiliato
Industriale Ivrea Uno Srl
Corso Massimo d'Azeglio, 10 10015 Ivrea (TO)

Il nostro staff


  • Nicolò Noro
    Affiliato

  • Mattia Blasotta
    Affiliato
Corso Massimo d'Azeglio, 10 10015 Ivrea (TO)
Zona: Ivrea
Mostra su mappa
Affiliato
Industriale Ivrea Uno Srl
Corso Massimo d'Azeglio, 10 10015 Ivrea (TO)

2026 Tecnocasa Franchising S.p.A. - P. IVA 08365160152 - Via Monte Bianco 60/A 20089 Rozzano (MI). Ogni agenzia ha un proprio titolare ed è autonoma. Privacy policy | Policy utilizzo | Cookie policy